PROJECTS

Oberbeton

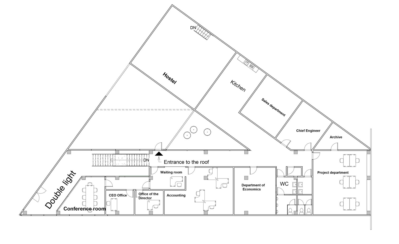
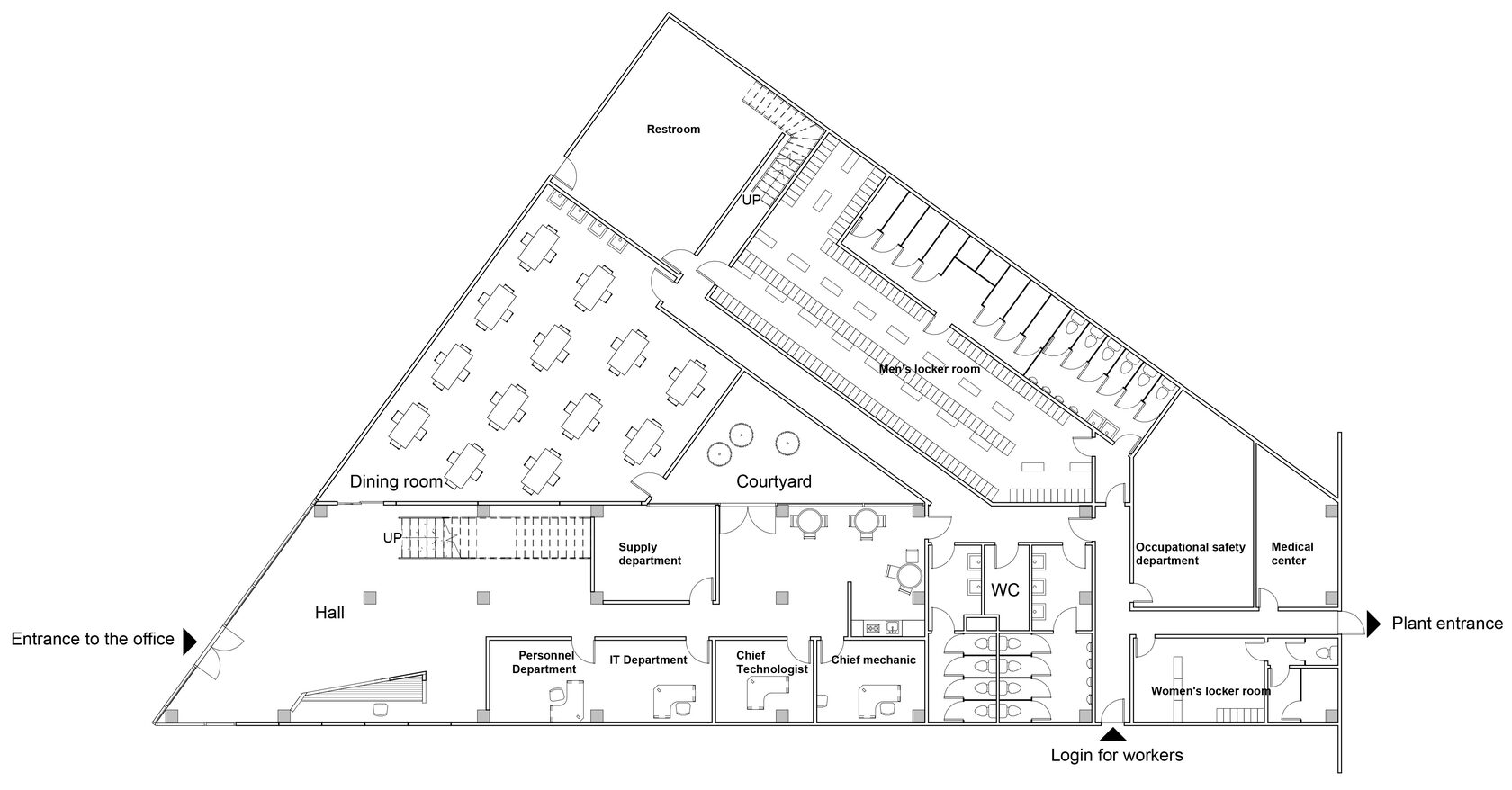
This project involved the construction of a new precast concrete office building within an existing plant, designed entirely using precast materials. The office features a rustic style that combines modern functionality with an inviting aesthetic, serving as a showroom for potential clients. The use of precast concrete not only ensures durability and efficiency but also highlights the versatility of this construction method in creating functional and stylish spaces.
Architecture